冷風機的控制回路(圖9-5)功能特點是:具有多個溫度控制點,這些溫度控制點除了控制庫房的溫度外(這個點是在庫房溫度達到設置溫度時關閉供液電磁閥),還用于控制融霜溫度終止值。在達到融霜溫度后,提前終止融霜,以減少能耗;如果還要細化,還可以設置融霜后冷風機風扇重新起動的溫度,這是因為在蒸發器融霜后,蒸發器的盤管翅片仍然有熱量,如果這時起動冷風機的風扇,這些熱量會加熱庫房的空氣溫度.導致庫房的空氣膨脹,若情況嚴重會把冷庫的門頂開,如果這道門鎖上,會把門鎖打爛,甚至能把冷庫的頂掀起,使冷庫的結構遭到破壞。
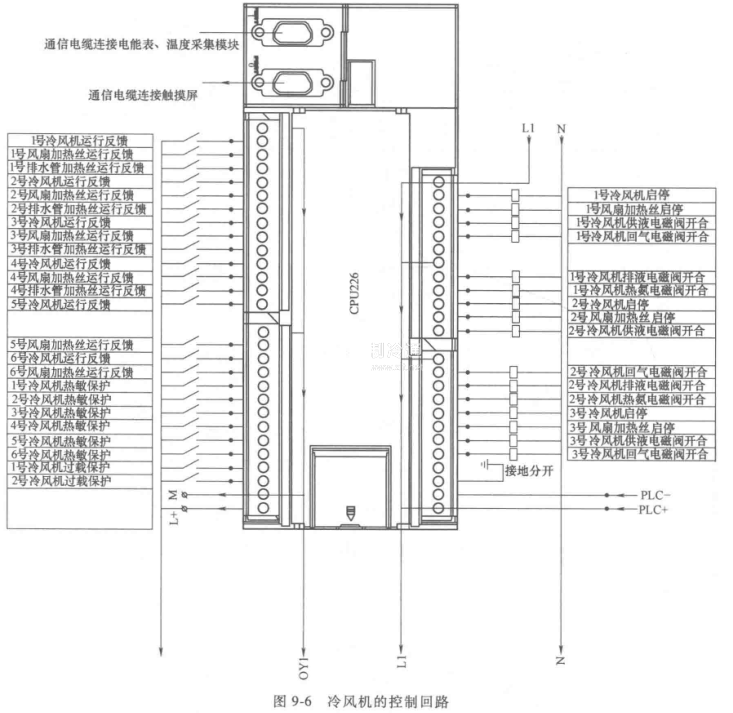
如果設置了冷風機風扇重新起動的溫度探頭,那么這個功能是:在融霜結束時,首先開啟供液電磁閥,使蒸發盤管降溫,當溫度達到設定值,需要冷風機風扇重新起動的(一般設置在-8~-3℃),風扇才重新開始起動,這種空氣膨脹的現象也就不會發生了。另外,這種控制回路一般還會設置融霜的時間程序:包括起動融霜的冷風機運行時間的累計時間、每次融霜的時間設定、實現具備融霜條件(這些條件包括至少一臺同樣蒸發面積的冷風機融霜時,需要另外同樣蒸發面積的兩臺冷風機在降溫,或者在同一高壓系統中有穩定的熱源供融霜系統使用,例如中溫穿堂在運行);所有冷風機的融霜次序的編排,還有冷風機電動機的運行指示與故障指示輸入與輸出等(圖9-6)。






