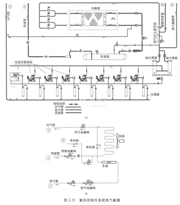
壓縮機吸氣和排氣壓力損失過大,對壓縮功率的影響是相當大的。圖2-31a與圖2-31b是某個在氟利昂系統中采用熱氣融箱的制冷系統(這原來是國外一個商業制冷系統,應用在一般的超級市場的冷凍柜或者小冷庫群,但在我國一些公司卻應用在工業制冷系統)。熱氣融霜是制冷系統一種節能的融箱方式,但應用不當會造成得不償失的效果。在這個系統中,融霜排液的壓力差是利用排氣壓力調節閥設定的壓差(一般設里為3bar),而在冷風機的回氣閥又采用了阻力很大的用于供液的電磁閥(例如采用了丹佛斯的EVR系列,正確的是采用ICLX系列)。這樣造成了壓縮機吸氣和排氣壓力損失過大,EVR系列在圖2-30所示的工況下,其壓力降超過0. 1 bar,而ICLX系列其壓力降只有0.0002 bar,兩者相差500倍。圖2-32中2-1(實線部分)是這種系統壓縮過程所產生的能耗,而1'-2'(虛線部分)是正常合理的壓縮過程所產生的能耗。筆者發現,在我國的氟利昂系統使用這種熱氣融箱的錯誤方式還是比較普遍的,這種方式造成的能量損失也是相當大的。也就是說在商業制冷系統應用的方式不一定適合于工業制冷。
如何控制壓縮機的過熱度?在直接膨脹系統,是通過感溫包檢測的回氣過熱度來控制膨脹閥的開啟大小;而在滿液式供液系統,則是通過控制分離容器的氣體速度在允許范圍內來實現。前者由于負荷和溫度的變化很難把過熱度控制在理想的范圍內,而后者只要分離容器選型合理就能把過熱度控制住。另外,前面提及的閃發氣體去除也是提高制冷效率的有利方法,而直接膨脹系統沒有這種優勢。這就是在工業制冷系統中比較少采用直接膨脹供液方式的原因。






